AREMA RAIL SUPPLIER FROM CHINA
15+ YEARS EXPERIENCE OF RAILWAY RAILS
Glory Steel Work is a professional supplier of American Standard AREMA rails, providing high-performance rail solutions that strictly adhere to AREMA specifications for heavy-haul railways, industrial tracks, and large-scale infrastructure projects across North America and globally.
We possess a deep understanding of the stringent AREMA requirements for chemical composition, mechanical properties, and geometric tolerances, ensuring every rail meets the most rigorous project acceptance standards. From the widely used 136RE and 133RE for main heavy-haul lines to the 115RE and 119RE suited for industrial yards and ports, we offer the complete series. Supported by ample inventory and efficient custom processing services (cutting, drilling), we guarantee the on-time delivery and seamless installation for your project.
Understanding AREMA Rail
AREMA rail sets the standard for heavy-duty track worldwide. Developed by the American Railway Engineering Association, this standard is the essential reference for designing and sourcing rails for heavy-haul lines, industrial yards, and crane runways.
Choosing AREMA rail means selecting for your project:
- Reliability You Can Count On: These specifications are backed by decades of real-world performance on the toughest heavy-haul routes.
- Guaranteed Compatibility: AREMA rail fits perfectly with existing switches, joints, and accessories from any supplier that meets the same standard, ensuring seamless integration.
- Streamlined Process from Start to Finish: Using this universal standard simplifies every step—from design and purchasing to future maintenance and replacement.
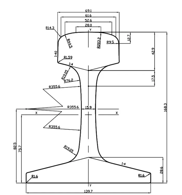
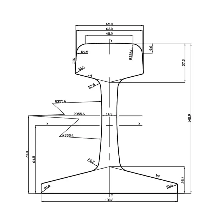
AREMA Rail Dimensions & Specifications
Detailed dimensions and weights of all rail models
| Type of Rails | Dimensions (mm) | Weight (kg/m) | Steel Grade | |||
|---|---|---|---|---|---|---|
| Rail Height (A) | Bottom Width (F) | Head Width (C) | Web Thickness (t) | |||
| 90ARA-A (TR45) | 142.9 | 130.2 | 65.1 | 14.3 | 44.65 | Standard Strength (SS) Intermediate Strength (IS) High Strength / Head Hardened (HH) |
| 100RE | 152.4 | 136.5 | 68.3 | 14.3 | 50.34 | |
| 115RE (TR57) | 168.3 | 139.7 | 69.1 | 15.9 | 56.9 | |
| 119RE | 173.1 | 139.7 | 67.5 | 15.9 | 58.86 | |
| 132RE | 180.9 | 152.4 | 76.2 | 16.6 | 65.58 | |
| 133RE | 179.39 | 152.4 | 76.2 | 17.46 | 66.1 | |
| 136RE (TR68) | 185.7 | 152.4 | 74.6 | 17.5 | 67.5 | |
| 141RE | 188.91 | 152.4 | 77.79 | 17.46 | 69.94 | |
AREMA rail Materials & Mechanical Properties
AREMA rails are classified by strength level to match different axle loads, traffic density, and wear conditions.
At Glory Steel Work, we supply Standard Strength (SS), Intermediate Strength (IS), and High Strength / Head Hardened (HH) rails in full compliance with AREMA specifications.
- SS rails are typically used for general freight lines and yards where loads are moderate and service conditions are stable.
- IS rails offer improved wear resistance and higher yield strength, making them suitable for heavier traffic and increased axle loads.
- HH rails are designed for high-stress environments, where enhanced hardness and head wear resistance are critical for extended rail life.
Depending on project requirements, AREMA rails can be produced using Carbon Steel or Low Alloy Steel chemistry, both strictly controlled within AREMA 2019 chemical composition limits.
| Mechanical Properties | |||||
|---|---|---|---|---|---|
| Specs | Steel Grade | Hardness HB | Tensile Strength ksi | Yield Strength ksi | Elongation % |
| AREMA (Carbon Steel Chemistry) | Standard Strength (SS) | ≥ 310 | ≥ 142.5 | ≥ 74.0 | ≥ 10 |
| Intermediate Strength (IS) | ≥ 350 | ≥ 155.0 | ≥ 105.0 | ≥ 10 | |
| High Strength / Head Hardened (HH) | ≥ 370 | ≥ 171.0 | ≥ 120.0 | ≥ 10 | |
AREMA Rail Manufacturing & Quality Control
Manufacturing AREMA rails is not only about meeting minimum mechanical values, but about maintaining consistent performance across every heat and every rail length. At Glory Steel Work, AREMA rail production follows a controlled process designed to ensure strength, hardness, and chemistry remain stable throughout the entire batch.
- Steelmaking & Chemistry Control
Chemical composition is strictly controlled within AREMA 2019 limits for both carbon steel and low alloy steel, ensuring predictable mechanical behavior and reliable weldability. - Heat Treatment & Head Hardening
For HH rails, head hardening parameters are precisely controlled to achieve uniform hardness and effective hardening depth, rather than surface-only hardness. - Mechanical Property Verification
Hardness, tensile strength, yield strength, and elongation are verified to meet or exceed AREMA minimum requirements before delivery. - Dimensional & Visual Inspection
Rail profiles, straightness, and surface condition are inspected to ensure compatibility with standard fastening systems and field installation.
This process-driven approach allows us to deliver AREMA rails with repeatable quality, not just compliant test results.
AREMA Rail for Sale
Beyond compliance and performance, successful AREMA rail projects depend on supply reliability and execution capability.
Glory Steel Work supports AREMA rail procurement with a project-oriented approach focused on delivery, flexibility, and communication.
- Stock & Rolling Production Availability
Common rail profiles and grades can be supplied from stock or scheduled rolling, helping reduce lead time for maintenance and urgent replacement needs. - Project-Based Customization
Rail length, heat treatment, chemistry selection, and marking can be adapted to project specifications without unnecessary complexity. - Clear Lead Time & Export Coordination
Production planning, packing, and export documentation are aligned to international shipment requirements, ensuring predictable delivery schedules. - Technical & Commercial Support
Our team works directly with contractors, operators, and distributors to streamline technical confirmation and quotation processes.
If you are sourcing AREMA rails for a new line, renewal program, or long-term supply, we are ready to support your project from specification to delivery.